Diakonie Halle
Semesterentwurf
Industriebau
Prof. Hahn, Dr. Krause


Erläuterungen
Lageplan
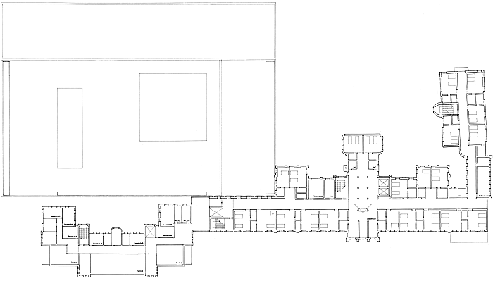
Ebene 0
Ebene 1
Ebene 2
Ebene 3
Ebene 4
 Ebene 5
 Schnitt
 Eingangshalle


Studium
Diplomarbeit

Startseite
Ebene 5
Schnitt Eingangshalle
Bernadett Kurtze
Diplomingenieurin
Architektur